6套11×12米的农村别墅大热户型,挑一套年后就建!
还有20多天就过年了,很多年后想开工建房的业主都想把定建房图纸这件事推到年后,其实过完年定好开工吉日,留给业主挑选图纸的时间就不多了,而建房图纸是大事,所以各位自建房业主一定要给自己留足时间慢慢挑!今天小编给大家推荐6款11×12米的农村别墅,大家看看有没有喜欢的!
复式三层带车库简欧小别墅

此款别墅为砖混结构的复式三层,开间11.7米,进深11.1米,占地面积125.93平方米,建筑面积303.96平方米,主体造价为24-28万,此款图纸编号: DC0229。
首层户型图:

图纸预览:


一 层:客厅(中空)、卧室、厨房、餐厅、卫生间、车库
二 层:小客厅、卧室(附阳台)、2卧室、卫生间
三 层:小客厅、卧室(附阳台)、2卧室、卫生间、露台
建房实拍

漂亮三层复式欧式别墅


此款为三层的框架结构别墅,开间11.7米,进深11.2米,占地面积130.04平方米,建筑面积336.44平方米,主体造价35-40万,此款图纸编号: DC0232。
首层户型:

图纸预览:

一 层:客厅(中空)、卧室、棋牌室、厨房、餐厅、储藏室、卫生间
二 层:小客厅、卧室(附卫生间)、2卧室、卫生间
三 层:活动室、卧室(附卫生间)、卧室、卫生间、露台
建成实拍

漂亮复式三层带露台简欧小别墅

此款别墅,开间11米,进深12米,占地面积138.34平方米,建筑面积351.69平方米,主体造价30-35万,此款图纸编号: DC0361。
首层户型图:

一 层:有门厅,客厅为中空设计,有1个卧室带单独卫生间,厨房、餐厅、还有一个公用卫生间,生活很方便,布局也很简单明朗。
二层户型图:

二层:带一个小客厅,三个卧室,一个公用卫生间,其中一个卧室带单独卫生间和阳台,还有一个卧室带书房。
三层户型图:

三层:健身房、卧室(附卫生间)、卧室、卫生间、露台,大露台满足晾晒和休闲的需求。
农村二层带阳台小别墅

此款别墅,开间11.4米,进深12米,占地面积138.78平方米,建筑面积309.63平方米,主体造价在28-32万之间,此款图纸编号: DC0315。
首层户型图:

该户型的立体感和层次感都较强,能够得到这么多户主的青睐与自身的颜值和内涵是分不开的,主体造价也比较常规化,30万左右,也是大多数计划建房人能够接受的范围。
图纸预览:


一 层:门厅、客厅、卧室(附卫生间)、卧室、厨房、餐厅、卫生间
二 层:起居室、卧室(附书房,卫生间,阳台)、卧室(附阳台)、卧室、卫生间
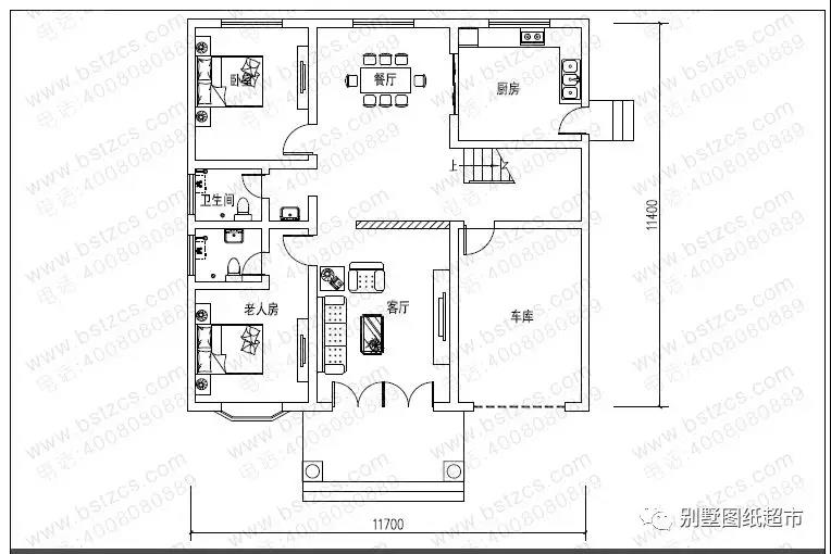
三层带车库新农村别墅


此款别墅,开间11.7米,进深11.4米,占地面积138.98平方米,建筑面积376.37平方米,主体造价为26-32万之间,此款图纸编号: DC0066。
首层户型图:

一层入户处用罗马柱装饰,设有两个卧室一个公用卫生间,其中一个卧室带单独卫生间、其中厨房、餐厅、车库都配备,既不违背风水常理,又很方便实用。
图纸预览:


一 层:客厅、卧室(附卫生间)、卧室、厨房、餐厅、卫生间、车库
二 层:客厅、卧室(附阳台)、卧室(附卫生间)、3卧室、卫生间
三 层:客厅、卧室(附卫生间)、2卧室、卫生间、露台
新农村二层带车库小别墅

此款别墅,开间12米,进深10.8米,占地面积:130.23平方米,建筑面积260.46平方米,主体造价为主体造价19-24万,此款图纸编号: DC0214。
首层户型图:

图纸预览:


一 层:客厅、卧室、厨房、餐厅、卫生间、车库
二 层:客厅(附阳台)、主卧(附卫生间)、3卧室、棋牌室、卫生间
.jpg)
本文由别墅图纸超市编辑发布,如需了解更多,可登录网站主页http://www.bstzcs.com/,或者拨打我们的免费电话400-8080-889在线咨询。
>>>>推荐阅读:21款别墅定制设计送你参考,开春建个美丽家
>>>>推荐阅读:11套最新设计农村自建别墅定制款,专为新农村设计!
>>>>推荐阅读:10款复式客厅自建别墅,大气好户型,开春建房不用愁!











