20款经典双拼别墅,各有亮点,兄弟建房选它们绝对错不了!
在我们的爷爷辈都讲得是人多就是力量,孩子生得多,劳动力就多,生活才会好。因此一家多个孩子的现象才是常态,我们的父辈基本都是3个及以上的吧!但是虽然孩子多,宅基地却不多,大部分的是一家才一块宅基地,限制于宅基地,现在要建房子确实是顾虑较多的。那这种人多地少的情况要在农村自建房,盖双拼别墅是再合适不过了,施工时相互照看帮衬,盖好之后在生活上也能相互照应,以后成家了还能促进下辈的和谐,想想都是极好的。于是今天小编就给大家带来20款双拼自建房,每一套都各有亮点,看看你们最喜欢哪一套吧!
现成图纸
编号: DC0360
层数: 二层
结构形式: 砖混结构
主体造价: 43-48万
开间: 16米
进深: 13.2米
占地面积: 212.8平方米
建筑面积: 483.89平方米



一 层: 客厅、卧室(附卫生间)、厨房、餐厅、卫生间
二 层: 起居室、卧室(附卫生间)、卧室(附阳台)、卧室、卫生间
编号: DC0301
层数: 三层
结构形式: 框架结构
主体造价: 50万以上
开间: 19米
进深: 11.1米
占地面积: 203.04平方米
建筑面积: 625.05平方米


一 层: 客厅、卧室(附卫生间)、厨房、餐厅、储藏室、卫生间
二 层: 客厅、卧室(附卫生间,阳台)、2卧室、卫生间
三 层: 客厅、卧室、娱乐室、卫生间、露台
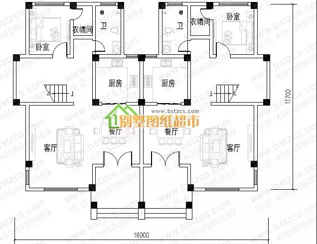
编号: DC0266
层数: 三层
结构形式: 框架结构
主体造价: 40-46万
开间: 16米
进深: 11.7米
占地面积: 162.9平方米
建筑面积: 519.13平方米


一 层: 客厅、卧室(附衣帽间)、厨房、餐厅、卫生间
二 层: 客厅(附阳台)、卧室(附衣帽间)、2卧室、卫生间
三 层: 客厅(附露台)、娱乐室、卧室、储藏室、卫生间、露台
编号: DC0240
层数: 二层
结构形式: 砖混结构
主体造价: 36-42万
开间: 18.24米
进深: 11.44米
占地面积: 202.94平方米
建筑面积: 405.88平方米


一 层: 客厅、卧室、厨房、餐厅、储藏室、卫生间
二 层: 客厅、卧室(附阳台)、2卧室、书房、卫生间
编号: DC0222
层数: 二层
结构形式: 砖混结构
主体造价: 32-38万
开间: 22.8米
进深: 10.2米
占地面积: 239.66平方米
建筑面积: 599.15平方米


一 层: 客厅、2卧室、厨房、餐厅、卫生间
二 层: 客厅(附阳台)、卧室(附阳台)、3卧室、书房、卫生间
阁 楼: 储藏间
编号: DC0183
层数: 三层
结构形式: 砖混结构
主体造价: 32-38万
开间: 18.24米
进深: 10.68米
占地面积: 220平方米
建筑面积: 508平方米


一 层: 大堂、卧室、厨房、餐厅、储物间、盥洗室、卫生间
二 层: 客厅、卧室(附卫生间,阳台)、卧室、盥洗室、卫生间
三 层: 卧室、活动室、储物室、盥洗室、卫生间、露台
编号: DC0063
层数: 三层
结构形式: 框架结构
主体造价: 42-50万
开间: 18.26米
进深: 8.9米
占地面积: 162.5平方米
建筑面积: 460.74平方米


一 层: 客厅、卧室、厨房、餐厅、卫生间
二 层: 客厅(附阳台)、2卧室、卫生间
三 层: 卧室(附阳台)、卧室、卫生间、露台
编号: DC0117
层数: 二层
结构形式: 砖混结构
主体造价: 38-45万
开间: 24.8米
进深: 10米
占地面积: 221.6平方米
建筑面积: 388.29平方米


一 层: 客厅、卧室、厨房、餐厅、卫生间、车库
二 层: 卧室(附露台)、卧室(附书房)、卧室、卫生间、阳台
编号: DC0163
层数: 三层
结构形式: 砖混结构
主体造价: 40-48万
开间: 18米
进深: 11.5米
占地面积: 214.14平方米
建筑面积: 531.58平方米


一 层: 客厅、卧室、厨房、餐厅、储藏室、卫生间
二 层: 客厅(附阳台)、2卧室、卫生间
三 层: 2卧室、卫生间、露台
定制设计案例
定制设计案例一

定制设计案例二

定制设计案例三

定制设计案例四

定制设计案例五

定制设计案例六

定制设计案例七

定制设计案例八

定制设计案例九

定制设计案例十

定制设计案例十一

.jpg)
本文由别墅图纸超市编辑发布,如需了解更多,可登录网站主页http://www.bstzcs.com/,或者拨打我们的免费电话400-8080-889在线咨询。
>>>>推荐阅读:7款双拼三层自建别墅,农村兄弟建房首选!
>>>>推荐阅读:兄弟,一起建个这样的二层带阳台双拼别墅吧!
>>>>推荐阅读:6款经典双拼别墅设计图,兄弟建房有这些就够了











