10款简洁大方经济型三层自建别墅,第1款造价20万,第6款最漂亮!
有人说,不管在全国哪里的农村,大概只要花费当地城市房价的十分之一就可以建上一栋相当舒适和精致的自建房了。虽然说法有待考究,但农村自建房造价便宜、质量有保证、住着极舒适的这些优点是商品房所无法超越的。所以建一栋精美大气实用的别墅永远都是每个人心中梦寐以求的理想家,今天给大家分享10款简洁大方经济型三层自建别墅,户型好易建造!
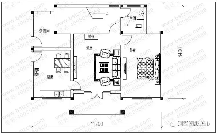
三层带大阳台自建别墅
.jpg)
编号: DC0025
结构形式: 砖混结构
开间: 11.94米 进深: 8.64米
占地面积: 106.89平方米
建筑面积: 290.56平方米
主体造价: 20-24万
首层户型:
.jpg)
图纸预览:
.jpg)
一 层:堂屋、卧室、厨房、卫生间、杂物间
二 层:客厅(附阳台)、卧室(附卫生间)、卧室、卫生间
三 层:客厅(附阳台)、卧室、卫生间、露台
三层坡屋顶自建别墅
.jpg)
.jpg)
编号: DC0032
结构形式: 框架结构
开间: 14米 进深: 11.2米
占地面积: 156.47平方米
建筑面积: 390.64平方米
主体造价: 30-35万
首层户型:
.jpg)
图纸预览:
.jpg)
一 层:客厅、卧室(附衣帽间)、厨房、餐厅、储藏室、卫生间、车库
二 层:主卧(附卫生间,阳台)、卧室(附衣帽间)、卧室、卫生间、露台
三 层:起居室(附书房,卫生间,阳台)、卧室(附阳台)、卧室(附衣帽间)、卧室、露台
三层带多个露台自建别墅
.jpg)
.jpg)
编号: DC0081
结构形式: 砖混结构
开间: 12米 进深: 14.7米
占地面积: 134.97平方米
建筑面积: 449.28平方米
主体造价: 27-34万
首层户型:
.jpg)
图纸预览:
.jpg)
一 层:大堂、客厅、卧室(附卫生间)、娱乐房、厨房、餐厅、卫生间
二 层:起居室(附露台)、卧室(附卫生间,露台)、卧室(附露台)、卧室、书房、卫生间
三 层:活动室(附露台)、2卧室、书房、卫生间、阳台
三层自建单体别墅
.jpg)
.jpg)
编号: DC0086
结构形式: 框架结构
开间: 11.5米 进深: 12.5米
占地面积: 122.7平方米
建筑面积: 317.1平方米
主体造价: 26-32万
首层户型:
.jpg)
图纸预览:
.jpg)
一 层:玄关、客厅、卧室、厨房、餐厅、卫生间、室内景观、车库
二 层:卧室(附书房)、卧室(附卫生间)、卧室、娱乐室(附阳台)、卫生间
三 层:客厅、主卧(附书房,卫生间,阳台)、露台
新农村三层房屋带车库
.jpg)
编号: DC0123
结构形式: 砖混结构
开间: 11.2米 进深: 11.7米
占地面积: 125.7平方米
建筑面积: 305.12平方米
主体造价: 20-25万
首层户型:
.jpg)
图纸预览:
.jpg)
一 层:客厅(中空)、卧室、厨房、餐厅、卫生间、车库
二 层:客厅、卧室(附阳台)、2卧室、书房、卫生间
三 层:卧室(附书房)、2卧室、卫生间、露台
农村实用三层带露台别墅
.jpg)
.jpg)
编号: DC0251
结构形式: 框架结构
开间: 12.8米 进深: 10.8米
占地面积: 118.34平方米
建筑面积: 301.42平方米
主体造价: 25-30万
首层户型:
.jpg)
图纸预览:
.jpg)
一 层:客厅、卧室(附衣帽间)、卧室、厨房、餐厅、卫生间
二 层:小客厅、卧室(附阳台)、2卧室、衣帽间、书房、卫生间
三 层:卧室(附衣帽间,书房,化妆间,卫生间,阳台)、露台
框架结构三层带露台别墅
.jpg)
编号: DC0245
结构形式: 框架结构
开间: 12.2米 进深: 13.5米
占地面积: 146.12平方米
建筑面积: 405.58平方米
主体造价: 34-40万
首层户型:
.jpg)
图纸预览:
.jpg)
一 层:客厅、卧室(附卫生间)、卧室、棋牌室、厨房、餐厅(附景观阳台)、卫生间
二 层:起居室(附阳台)、茶厅(附阳台)、卧室(附阳台)、卧室(附卫生间)、2卧室、书房、卫生间
三 层:健身房(附露台)、卧室(附卫生间,露台)、2卧室、书房、卫生间
三层带露台别墅图纸
.jpg)
编号: DC0281
结构形式: 框架结构
开间: 12.9米 进深: 10.8米
占地面积: 130.4平方米
建筑面积: 353平方米
主体造价: 30-36万
首层图纸:
.jpg)
图纸预览:
.jpg)
一 层:玄关、客厅、卧室、棋牌室、厨房、餐厅、卫生间
二 层:客厅、休息区(附阳台)、4卧室、卫生间
三 层:客厅、3卧室、卫生间、露台
简单时尚三层复式别墅
.jpg)
.jpg)
编号: DC0292
结构形式: 框架结构
开间: 12米 进深: 12米
占地面积: 135.42平方米
建筑面积: 366.13平方米
主体造价: 30-35万
首层户型:
.jpg)
图纸预览:
.jpg)
一 层:过厅、客厅(中空)、2卧室、厨房、餐厅、卫生间
二 层:客厅、2卧室(附阳台)、2卧室、卫生间
三 层:客厅、卧室(附阳台)、3卧室、卫生间、露台
大气的三层欧式别墅
.jpg)
编号: DC0297
结构形式: 框架结构
开间: 13.8米 进深: 10.5米
占地面积: 144.58平方米
建筑面积: 456.42平方米
主体造价: 40-45万
首层户型:
.jpg)
图纸预览:
.jpg)
一 层:堂屋、客厅、卧室(附卫生间)、卧室、厨房、餐厅、卫生间
二 层:起居室、卧室(附卫生间)、3卧室、书房、棋牌室、卫生间、阳台
三 层:起居室、卧室(附卫生间)、卧室、娱乐室、卫生间、露台
在自己的家乡和家人在漂亮的大房子里一起享受美好的生活,这是多么美好的一件事。
.jpg)
本文由别墅图纸超市编辑发布,如需了解更多,可登录网站主页http://www.bstzcs.com/,或者拨打我们的免费电话400-8080-889在线咨询。
>>>>推荐阅读:精选8款造价25万左右农村自建别墅,花最少的钱建最好的房子!
>>>>推荐阅读:13款大气实用易建造的农村自建别墅户型,有你喜欢的吗?
>>>>推荐阅读:一款美观经济又实惠的一层带阁楼农村自建别墅











