农村盖房不愁,10套经典户型任挑,2,3,4套造价只要18万!
现在建造房子户型选择太多了,几百套户型在面前,挑的的眼花缭乱。既要美观大气,同时又要考虑到造价,于是往往不知选择建造什么样的户型?对于建房的朋友都存在这样的烦恼,在这里下面小编给出10套农村别墅户型图,其不含室内装修造价在三十万左右,第2、3、4套造价更是只要18万,希望能给大家一个很好的选择。
漂亮的二层带露台双拼别墅
编号: DC0377
结构形式: 砖混结构
开间: 15.6米 进深: 11.4米
占地面积: 176.8平方米
建筑面积: 380.4平方米
主体造价: 35-40万
一 层:客厅、卧室、厨房、餐厅、卫生间
二 层:起居室、卧室(附露台)、卧室(附阳台)、卫生间
农村二层实用小别墅
编号: DC0376
结构形式: 砖混结构
开间: 10.2米 进深: 9.9米
占地面积: 104.16平方米
建筑面积: 220.31平方米
主体造价: 18-22万
一 层:门厅、客厅、2卧室、厨房、餐厅、卫生间
二 层:起居室、卧室(附书房)、卧室(附露台)、2卧室、卫生间
农村二层经济型小别墅
编号: DC0375
结构形式: 砖混结构
开间: 11米 进深: 10米
占地面积: 114.62平方米
建筑面积: 210.85平方米
主体造价: 18-22万
一 层:门厅、客厅、2卧室、厨房、餐厅、卫生间
二 层:娱乐室、卧室(附露台)、2卧室、书房、卫生间、露台
实用经济型一层小别墅
编号: DC0371
结构形式: 砖混结构
开间: 14米 进深: 11米
占地面积: 158.6平方米
建筑面积: 188.6平方米
主体造价: 18-22万
一 层:门厅、客厅、卧室(附卫生间)、3卧室、厨房、餐厅、卫生间
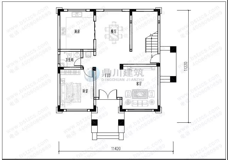
二层带阳台农村小别墅
编号: DC0374
结构形式: 砖混结构
开间: 11.8米 进深: 11.1米
占地面积: 136.53平方米
建筑面积: 303.36平方米
主体造价: 26-30万
首层户型:
二层户型:
一 层:门厅、客厅、卧室、厨房、餐厅、卫生间
二 层:起居室(附阳台)、3卧室、娱乐室、卫生间
农村三层小户型自建房
编号: DC0372
结构形式: 砖混结构
开间: 11.3米 进深: 7.8米
占地面积: 94.85平方米
建筑面积: 271.98平方米
主体造价: 24-28万
首层户型:
二层户型:
三层户型:
一 层:门厅、客厅、卧室、厨房、餐厅、卫生间
二 层:起居室、娱乐室(附阳台)、3卧室、卫生间
三 层:起居室、茶室、2卧室、卫生间、露台
欧式三层复式客厅小别墅
编号: DC0370
结构形式: 框架结构
开间: 11.42米 进深: 11.22米
占地面积: 115.18平方米
建筑面积: 313.68平方米
主体造价: 30-35万
首层户型:
二层户型:
三层户型:
一 层:门厅、客厅(中空)、卧室、厨房、餐厅、卫生间
二 层:起居室(附阳台)、3卧室、卫生间、阳台
三 层:娱乐室、3卧室、卫生间、露台
漂亮的三层带露台农村小别墅
编号: DC0358
结构形式: 框架结构
开间: 10.6米 进深: 14.62米
占地面积: 149.18平方米
建筑面积: 391.43平方米
主体造价: 40-45万
首层户型:
二层户型:
三层户型:
一 层:门厅、客厅、卧室(附卫生间)、卧室、厨房、餐厅、卫生间
二 层:客厅、茶厅、卧室(附卫生间,阳台)、卧室(附书房)、卧室、卫生间
三 层:卧室(附卫生间)、健身房、卫生间、露台
新农村二层别墅
编号: DC0359
结构形式: 砖混结构
开间: 14.4米 进深: 12.6米
占地面积: 180.6平方米
建筑面积: 368.8平方米
主体造价: 30-35万
首层户型:
二层户型:
一 层:门厅、客厅、卧室(附卫生间)、2卧室、厨房、餐厅、储物间、卫生间
二 层:起居室(附阳台)、娱乐室(附阳台)、卧室(附卫生间)、3卧室、书房、卫生间
二层带车库农村别墅
编号: DC0368
结构形式: 砖混结构
开间: 14.6米 进深: 12.65米
占地面积: 177.17平方米
建筑面积: 409.85平方米
主体造价: 33-38万
首层户型:
二层户型:
一 层:门厅、客厅、卧室(附卫生间)、卧室、厨房、餐厅、卫生间、车库
二 层:起居室、娱乐室(附露台)、卧室(附书房,阳台,卫生间)、3卧室、卫生间
农村建房要随着时代而进步,传统的老三间民房,早就应该淘汰了,现在农村都开始建起了洋楼别墅,建出来漂亮大气,而且住起来各空间布局合理,上面10套别墅户型如果是你想要的,那就收藏起来吧。
.jpg)
本文由别墅图纸超市编辑发布,如需了解更多,可登录网站主页http://www.bstzcs.com/,或者拨打我们的免费电话400-8080-889在线咨询。
>>>>推荐阅读:10款经典火爆的农村自建别墅,建成后的实物图比效果图还美!
>>>>推荐阅读:12款占地不足百平农村别墅,有二层的,有三层的,经济又实用!
>>>>推荐阅读:30余款最新设计:造型大方又体面,都是适合老百姓建的好房子!











