宅基地进深8米建房,二层三层都有,这10款你一定喜欢!
一直有听到很多想建房的朋友给小编说,现在农村建房各种限制,宅基地大小限制,层高限制,不满足条件的,就算建好了还要被拆。政策不能改,那我们只能在现有的条件上好好利用自家宅基地了。进深8米怎么建房呢?这10款进深8米左右的农村自建别墅,二层三层都有,你一定喜欢!
农村三层小户型自建房

这款图纸编号: DC0372,砖混结构,主体造价为24-28万,开间11.3米,进深7.8米,占地面积94.85平方米,建筑面积271.98平方米。
首层户型:

一 层:门厅、客厅、卧室、厨房、餐厅、卫生间
二层户型:

二 层:起居室、娱乐室(附阳台)、3卧室、卫生间
三层户型:

三 层:起居室、茶室、2卧室、卫生间、露台
二层农村自建房屋

这款图纸编号: DC0136,砖混结构,主体造价为16-20万,开间15.9米,进深7.8米,占地面积114.65平方米,建筑面积201.43平方米。
首层户型:

一 层:客厅、2卧室、厨房、餐厅、卫生间
图纸预览:

二 层:客厅、卧室(附书房,卫生间)、卧室、卫生间、露台
农村二层小别墅

这款图纸编号: DC0224,砖混结构,主体造价为16-20万,开间10米,进深8米,占地面积79.29平方米,建筑面积152.55平方米。
首层户型:

一 层:玄关、客厅、卧室、厨房、餐厅、卫生间
图纸预览:

二 层:客厅、休闲厅、卧室(附阳台)、2卧室、卫生间
阁 楼:储藏间
新农村实用二层小别墅

这款图纸编号: DC0273,砖混结构,主体造价为16-20万,开间10.5米,进深8米,占地面积88.5平方米,建筑面积204.82平方米。
首层户型:

一 层:客厅、卧室、厨房、餐厅、储藏室、卫生间
图纸预览:

二 层:3卧室、书房(附阳台)、卫生间
农村三层带车库自建房

编号: DC0256,砖混结构,主体造价为22-26万,开间14米,进深8米,占地面积115.12平方米,建筑面积296.57平方米。
首层户型:

一 层:客厅、卧室、厨房、餐厅、卫生间、车库(兼储藏室)
图纸预览:

二 层:客厅、休息区、卧室(附露台)、3卧室、卫生间
三 层:3卧室、卫生间、2露台
二层带阳台农村小别墅

这款图纸编号: DC0324,砖混结构,主体造价为22-26万,开间13.8米,进深8.4米,占地面积116.18平方米,建筑面积268.86平方米。
首层户型:

一 层:客厅、卧室(附卫生间)、卧室、厨房、餐厅、卫生间
图纸预览:

二 层:起居室、卧室(附书房,卫生间,阳台,露台)、卧室(附阳台)、2卧室、卫生间
简单实用的二层小别墅

这款图纸编号: DC0282,砖混结构,主体造价为16-20万,开间12米,进深8米,占地面积100.86平方米,建筑面积227.77平方米。
首层户型:

一 层:堂屋、客厅、卧室、厨房、餐厅、卫生间
图纸预览:

二 层:客厅(附阳台)、卧室(附阳台)、卧室、儿童房、书房、卫生间
农村带露台三层小别墅

这款图纸编号: DC0057,砖混结构,主体造价为18-22万,开间12.84米,进深8米,占地面积89.76平方米,建筑面积219.86平方米。
首层户型:

一 层:客厅、卧室、厨房、餐厅、卫生间
图纸预览:

二 层:主卧(附衣帽间,露台)、卧室、书房、卫生间
三 层:2卧室、卫生间、露台
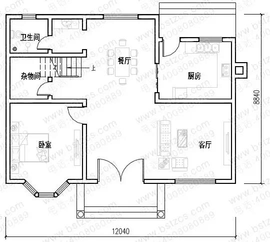
农村二层自建房

这款图纸编号: DC0239,砖混结构,主体造价为18-24万,开间12.04米,进深8.84米,占地面积103.4平方米,建筑面积206.79平方米。
首层户型:

一 层:客厅、卧室、厨房、餐厅、杂物间、卫生间
图纸预览:

二 层:休息厅、小客厅(附阳台)、卧室(附阳台)、2卧室、卫生间
新农村二层自建房

这款图纸编号: DC0342,砖混结构,主体造价为20-25万,开间17.1米,进深7米,占地面积123.02平方米,建筑面积260.93平方米。
首层户型:

一 层:客厅、2卧室、厨房、餐厅、卫生间、储存间
图纸预览:

二 层:起居室、卧室(附书房,卫生间,阳台,露台)、卧室(附阳台)、卫生间
对于房子来说,宅基地的大小,确实会直接影响房子的外型设计和室内布局,空间大,选择会相对多一些。但房子的样式并不是完全取决于宅基地的面积大小,我们应该从家庭实际情况和宅基地的大小这两个方面来决定房子的最终样式。生活中有很多实例,小开间,小进深的宅基地,最后建好的房子,美观又实用。这10款自建别墅图纸你喜欢吗?
.jpg)
本文由别墅图纸超市编辑发布,如需了解更多,可登录网站主页http://www.bstzcs.com/,或者拨打我们的免费电话400-8080-889在线咨询。
>>>>推荐阅读:私人定制的别墅20套,你想要的都在这,随便盖一栋全村人羡慕!
>>>>推荐阅读:农村宅基地面宽10米建房,这6款别墅图纸农村正流行!
>>>>推荐阅读:别急着开工!这6款最受欢迎的农村别墅赶紧看看,30万造价超值!











