4套双拼别墅建房案例,外观漂亮,户型好,兄弟更亲近!
目前国家土地政策收紧,宅基地不好批了,很多家庭,兄弟两人共享父母一块宅基地,这时候建一栋兄弟双拼户型就是一个不错的选择了。今天就来看看几款双拼别墅以及它的建房案例吧,看看你最喜欢哪一款?
编号: DC0163
层数: 三层
结构形式: 砖混结构
主体造价: 40-48万
开间: 18米
进深: 11.5米
占地面积: 214.14平方米
建筑面积: 531.58平方米


一 层: 客厅、卧室、厨房、餐厅、储藏室、卫生间
二 层: 客厅(附阳台)、2卧室、卫生间
三 层: 2卧室、卫生间、露台

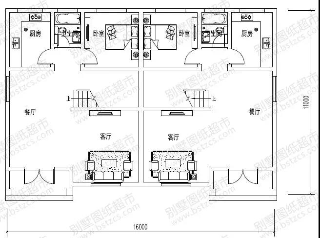
编号: DC0200
层数: 三层
结构形式: 砖混结构
主体造价: 36-42万
开间: 16米
进深: 11米
占地面积: 165.95平方米
建筑面积: 460.7平方米


一 层: 客厅、卧室、厨房、餐厅、卫生间
二 层: 客厅(附阳台)、2卧室、书房、卫生间
三 层: 客厅、2卧室、卫生间、露台

编号: DC0222
层数: 二层
结构形式: 砖混结构
主体造价: 32-38万
开间: 22.8米
进深: 10.2米
占地面积: 239.66平方米
建筑面积: 599.15平方米


一 层: 客厅、2卧室、厨房、餐厅、卫生间
二 层: 客厅(附阳台)、卧室(附阳台)、3卧室、书房、卫生间
阁 楼: 储藏间

编号: DC0240
层数: 二层
结构形式: 砖混结构
主体造价: 36-42万
开间: 18.24米
进深: 11.44米
占地面积: 202.94平方米
建筑面积: 405.88平方米


一 层: 客厅、卧室、厨房、餐厅、储藏室、卫生间
二 层: 客厅、卧室(附阳台)、2卧室、书房、卫生间

对于双拼别墅来说,两户一墙之隔,生活起居上能够相互照应,兄弟之间住得近凡事也好商量,也好共同照顾父母,想住谁家都可以。
.jpg)
本文由别墅图纸超市编辑发布,如需了解更多,可登录网站主页http://www.bstzcs.com/,或者拨打我们的免费电话400-8080-889在线咨询。
>>>>推荐阅读:【案例】三层农村别墅超经典,中式装修却更惹眼,高贵而典雅!
>>>>推荐阅读:农民赚钱不容易,几款性价比高又实用的别墅推荐给大家!
>>>>推荐阅读:6款经典双拼别墅设计图,兄弟建房有这些就够了











