占地120平农村别墅怎么建?这12套别墅户型,建过的都说好!
我们都知道农村自建房不能像以前那般随意,想建就建的,需要走合理的途径批到宅基地后再开建,如今宅基地不仅越来越难审批,而且规定面积不能超过120平,高度也有所限制,基本上最高也只能建三层,今天小编就给大家介绍12款占地面积在120平米左右的农村别墅,买回去建的人都说好!
农村二层带露台小别墅
.jpg)
编号: DC0212
结构形式: 砖混结构
主体造价: 16-20万
开间: 15.9米 进深: 7.8米
占地面积: 114.65平方米
建筑面积: 201.43平方米
首层户型:
.jpg)
一 层:客厅、2卧室、厨房、餐厅、卫生间
二 层:客厅、卧室(附书房,卫生间)、卧室、卫生间、露台
新农村三层带阳台别墅
.jpg)
编号: DC0019
结构形式: 砖混结构
主体造价: 22-28万
开间: 14.2米 进深: 8.4米
占地面积: 116.48平方米
建筑面积: 308.78平方米
首层户型:
.jpg)
一 层:客厅、卧室(附衣帽间)、厨房(附储藏间)、餐厅、洗衣间、卫生间;
二 层:客厅(附阳台)、卧室(附衣帽间)、2卧室、卫生间
三 层:客厅(附阳台)、卧室(附衣帽间)、卧室、卫生间、露台
三层带车库新农村房屋
.jpg)
.jpg)
编号: DC0157
结构形式: 砖混结构
主体造价: 22-26万
开间: 11.04米 进深: 11.94米
占地面积: 116.7平方米
建筑面积: 325.01平方米
首层户型:
.jpg)
一 层:走廊、客厅、卧室、厨房、餐厅、卫生间、车库
二 层:客厅(附阳台)、主卧(附衣帽间,卫生间)、2卧室、卫生间
三 层:客厅(附阳台)、2卧室、卫生间、露台
三层农村平顶别墅
.jpg)
编号: DC0125
结构形式: 框架结构
主体造价: 30-35万
开间: 10.7米 进深: 12.6米
占地面积: 127.99平方米
建筑面积: 385.92平方米
首层户型:
.jpg)
一 层:客厅、卧室(附卫生间)、娱乐室、厨房、餐厅、储藏间、卫生间
二 层:客厅(附阳台)、主卧(附卫生间)、2卧室、卫生间
三 层:家庭活动室、2卧室、卫生间、屋面露台
复式三层带车库大气别墅
.jpg)
编号: DC0205
结构形式: 框架结构
主体造价: 25-30万
开间: 13.4米 进深: 10.2米
占地面积: 119平方米
建筑面积: 297.6平方米
首层户型:
.jpg)
一 层:入口玄关、客厅、厨房、餐厅、卫生间、车库
二 层:起居室、卧室(附阳台)、卧室、书房、卫生间
三 层:起居室、主卧(附阳台)、卧室(附阳台)、书房、卫生间、露台
漂亮实用三层简欧小别墅
.jpg)
.jpg)
编号: DC0243
结构形式: 框架结构
主体造价: 25-32万
开间: 11米 进深: 11.3米
占地面积: 120.85平方米
建筑面积: 307.63平方米
首层户型:
.jpg)
一 层:客厅、卧室、厨房、餐厅、卫生间、车库或储藏室
二 层:客厅、卧室(附卫生间)、2卧室、书房(附阳台)、卫生间、阳台
三 层:2卧室(附卫生间)、露台
二层带阁楼大气别墅
.jpg)
编号: DC0171
结构形式: 框架结构
主体造价: 22-26万
开间: 12.44米 进深: 12.24米
占地面积: 124.54平方米
建筑面积: 255.36平方米
首层户型:
.jpg)
一 层:玄关、客厅、卧室、厨房、餐厅、储藏室、卫生间
二 层:家庭室(附阳台)、卧室(附更衣间,卫生间)、2卧室、卫生间
阁 楼:储藏间
二层带阁楼别墅设计
.jpg)
编号: DC0079
结构形式: 砖混结构
主体造价: 24-28万
开间: 12米 进深: 10.8米
占地面积:126.43平方米
建筑面积:312.77平方米
首层户型:
.jpg)
一 层:走廊、客厅、卧室(附储藏间)、厨房、 餐厅、储藏间、卫生间
二 层:主卧(附书房,卫生间)、卧室(附阳台 )、卧室、走入式衣柜、卫生间
阁 楼:储藏间
三层复式带车库农村别墅
.jpg)
编号: DC0076
结构形式: 砖混结构
主体造价: 24-28万
开间: 11.7米 进深: 11.1米
占地面积: 125.93平方米
建筑面积: 303.96平方米
首层户型:
.jpg)
一 层:客厅(中空)、卧室、厨房、餐厅、卫生间、车库
二 层:小客厅、卧室(附阳台)、2卧室、卫生间
三 层:小客厅、卧室(附阳台)、2卧室、卫生间、露台
三层带大阳台农村别墅
.jpg)
编号: DC0258
结构形式: 砖混结构
主体造价: 25-30万
开间: 11米 进深: 11米
占地面积: 126.34平方米
建筑面积: 342.86平方米
首层户型:
.jpg)
一 层:客厅、卧室、厨房、餐厅、洗衣房、卫生间
二 层:起居室、卧室(附阳台)、卧室(附卫生间)、卧室、棋牌室(附阳台)、卫生间
三 层:娱乐厅、卧室(附阳台)、卧室、卫生间、露台
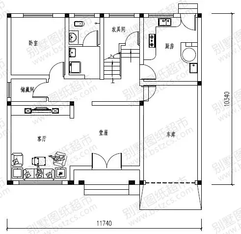
带车库二层半农村别墅
.jpg)
.jpg)
编号: DC0172
结构形式: 砖混结构
主体造价: 22-27万
开间: 11.74米 进深: 10.34米
占地面积: 117.85平方米
建筑面积: 307.92平方米
首层户型:
.jpg)
一 层:堂屋、客厅、卧室、厨房(兼餐厅)、储藏间、农具间、卫生间、车库
二 层:客厅、卧室(附阳台)、2卧室(附共用卫生间)、卧室、储藏间、卫生间
三 层:卧室(附阳台)、2卧室、储藏间、卫生间、露台
新农村二层带阳台小别墅
.jpg)
编号: DC0242
结构形式: 砖混结构
主体造价: 18-24万
开间: 11.1米 进深: 12米
占地面积: 123.05平方米
建筑面积: 246.1平方米
首层户型:
.jpg)
一 层:客厅、卧室、棋牌室(或卧室)、厨房、餐厅、杂物间、卫生间
二 层:小客厅、卧室(附卫生间)、2卧室、书房(或卧室)、卫生间、阳台
上面这12款农村别墅是现在流行的户型,造型简约时尚,室内布局和功能满足现代人们的需求,先看看再说,好户型就是值得建造,房子可能是要住一辈子的。
.jpg)
本文由别墅图纸超市编辑发布,如需了解更多,可登录网站主页http://www.bstzcs.com/,或者拨打我们的免费电话400-8080-889在线咨询。
>>>>推荐阅读:造价22万的9款乡村别墅,每一栋都精心设计,经典别致!
>>>>推荐阅读:16款定制设计款农村别墅,花大价钱设计的图纸到底值不值?
>>>>推荐阅读:7款厨房带后门的农村别墅,适合农村的生活习惯,值得收藏!











