漂亮大气的带车库及阁楼二层别墅设计图纸_别墅设计图纸,农村房屋设计图
购图前重要说明:
购买“图纸超市”类目下的图纸可赠送“赠品图纸”类目下任意三套图纸,赠品图纸单独出售为50元一套,100元三套,本套图纸仅提供电子文件一份,可用于施工参考或学习资料,您可以下载后打印出图,售后服务仅为图纸答疑,不包任何修改,因为只要其中一张图纸改变,其它图纸相应均需修改,工作量较大,所以我们不包修改。如果您个性要求较多需按要求订做设计,请查看 别墅设计业务流程,并联系设计客服咨询设计收费标准。
21211221详细介绍
| 图纸属性 | |||
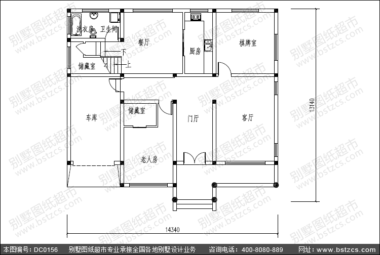
| 编号: DC0156 | 层数: 二层带阁楼 | 结构形式: 砖混结构 | 主体造价: 32-40万 |
| 开间: 14.34米 | 进深: 13.14米 | 占地面积: 171.68平方米 | 建筑面积: 330平方米 |
| 图纸内容 | ||||
| 建 筑 图: | 建筑设计说明、一层平面图、二层平面图、阁楼层平面图、屋顶平面图、正立面图、背立面图、左立面图、右立面图、1-1剖面图、楼梯平面图、楼梯剖面图、楼梯详图、门窗详图、门窗表、节点详图、卫生间大样图 | |||
| 结 构 图: | 结构设计说明、基础平面布置图、基础详图、二层结构平面图、阁楼层结构平面图、屋顶层结构平面图、二层梁配筋平面图、阁楼层梁配筋平面图、屋面层梁配筋平面图、节点详图、楼梯配筋图 | |||
| 给排水图: | 给排水设计说明、一层给排水平面图、二层给排水平面图、屋面给排水平面图、给排水系统图 | |||
| 电 气 图: | 电气设计说明、电力系统图、一层强电平面图、二层强电平面图、阁楼层强电平面图、基础接地平面图、一层弱电平面图、二层弱电平面图、阁楼层弱电平面图 | |||
| 设计功能 | ||||
| 一 层: | 门厅、客厅、老人房(附储藏室)、棋牌室、厨房、餐厅、储藏室、卫生间、车库 | |||
| 二 层: | 起居室、卧室(附卫生间,更衣室)、3卧室、书房、储藏室、卫生间 | |||
| 阁 楼: | 储藏间 | |||
本套图纸有施工图43张,效果图1张,包打印(效果图为彩图,施工图为A3大图),快递包邮,无电子版
特别提示
- 本站图纸如果用于建造房屋,为保证建造安全、图纸和实际地质情况相吻合,以及各地施工做法及水平的差异,避免因为直接使用图纸造成的材料浪费或者返工,图纸务必请专业人士验证后,再进行使用!
- 赠品图纸一般都只含有建筑施工图,无结构施工图和水电施工图,只能用于施工参考或学习资料,如果要用于建房请另找设计师将图纸进一步设计完整;
- 很多网站以光盘的形式出售图纸,宣称有6000多套甚至更多,请您务必慎重考虑,那些光盘里面大部分只有效果图而没有施工图,有CAD图纸的设计内容也是不完整的,只是方案图而不是施工图,缺少了节点图、结构配筋图、水电图等等,如果您对建筑行业不了解,等收到光盘并付款后发现里面的图纸不完整就于事无补了。选择齐全的施工图纸才能用于建房。
相关推荐
-
[新版]二层带车库露台别墅设计图纸_别墅设计图纸,新农村房屋
¥980.00 查看
-
二层新农村小别墅设计全套图纸_别墅设计图纸,农村房屋设计图
¥980.00 查看
-
独特二层带车库别墅设计图纸及效果图_别墅设计图纸,农村房屋设
¥398.00 查看
























