15套二、三层带堂屋的农村别墅,农村建再好不过!
说到农村自建房和城市商品房功能布局上的区别,最明显的地方就是有没有堂屋这个区域了。其实堂屋在农村算是一个比较重要的区域,农村一般行吉凶大礼,办红白喜事都会在堂屋进行。在日常生活中,堂屋一般有两个功能,一个是敬奉先人,一个是接待宾客。可想而知,堂屋对农村人的意义多么重大。今天小编就分享一下带堂屋的农村房子给大家参考!
编号: DC0012

层数: 二层
结构形式: 砖混结构
主体造价: 18-22万
开间: 12.6米
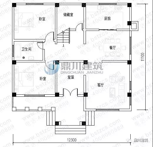
进深: 10.1米
占地面积: 111.35平方米
建筑面积: 253.1平方米
首层户型:

一 层: 堂屋、客厅、卧室、厨房、餐厅、卫生间
二 层: 客厅(附阳台)、棋牌室、卧室(附阳台)、2卧室、卫生间
编号: DC0101

层数: 二层
结构形式: 砖混结构
主体造价: 18-22万
开间: 13米
进深: 12.8米
占地面积: 172.65平方米
建筑面积: 250.95平方米
首层户型:

一 层: 内院、堂屋、客厅、卧室(附卫生间)、2卧室、厨房、储藏室、卫生间
二 层: 客厅、主卧(附卫生间,露台)、3卧室、卫生间
编号: DC0102

层数: 二层带阁楼
结构形式: 砖混结构
主体造价: 23-28万
开间: 13米
进深: 10.6米
占地面积: 137.9平方米
建筑面积: 272.7平方米
首层户型:

一 层: 堂屋、客厅、主卧(附卫生间)、卧室、厨房、餐厅、储藏室、卫生间
二 层: 客厅(附阳台)、主卧(附卫生间)、3卧室、卫生间
阁 楼: 储藏间
编号: DC0283

层数: 二层
结构形式: 砖混结构
主体造价: 20-25万
开间: 11米
进深: 9.6米
占地面积: 112.72平方米
建筑面积: 257.77平方米
首层户型:

一 层: 堂屋、客厅、2卧室、厨房、餐厅、卫生间
二 层: 客厅(附阳台)、卧室(附书房)、3卧室、卫生间
编号: DC0282

层数: 二层
结构形式: 砖混结构
主体造价: 16-20万
开间: 12米
进深: 8米
占地面积: 100.86平方米
建筑面积: 227.77平方米
首层户型:

一 层: 堂屋、客厅、卧室、厨房、餐厅、卫生间
二 层: 客厅(附阳台)、卧室(附阳台)、卧室、儿童房、书房、卫生间
编号: DC0311

层数: 二层
结构形式: 框架结构
主体造价: 30-36万
开间: 14.1米
进深: 12.9米
占地面积: 151.39平方米
建筑面积: 357.24平方米
首层户型:

一 层: 走廊、堂屋、客厅、卧室、厨房、餐厅、储藏室、卫生间
二 层: 客厅(附阳台)、娱乐室、卧室(附卫生间)、卧室、书房、卫生间
编号: DC0303

层数: 二层
结构形式: 砖混结构
主体造价: 35-40万
开间: 16.2米
进深: 11.4米
占地面积: 191.36平方米
建筑面积: 458.79平方米
首层户型:

一 层: 堂屋、客厅、卧室(附衣帽间,卫生间)、卧室、厨房、餐厅、卫生间、车库
二 层: 客厅(附阳台)、卧室(附衣帽间,卫生间)、4卧室、书房、卫生间
编号: DC0287

层数: 二层
结构形式: 框架结构
主体造价: 25-30万
开间: 12.3米
进深: 11.1米
占地面积: 130平方米
建筑面积: 295.19平方米
首层户型:

一 层: 走廊、堂屋、客厅、2卧室、厨房、餐厅、卫生间、储藏室
二 层: 客厅(附露台)、卧室(附书房,露台)、卧室(附露台)、卧室、卫生间
编号: DC0353

层数: 三层
结构形式: 框架结构
主体造价: 40-45万
开间: 14米
进深: 13.8米
占地面积: 196.66平方米
建筑面积: 434.81平方米
一层户型:

二层户型:

三层户型:

一 层:走廊、堂屋、客厅(中空)、会客室(附内阳台)、卧室(附卫生间)、厨房、餐厅、卫生间
二 层:小客厅(附阳台)、卧室(附卫生间,露台)、卧室(附书房)、卧室、卫生间
三 层:活动室、卧室(附卫生间)、卧室(附书房)、卫生间、阳台、露台
编号: DC0318

层数: 三层
结构形式: 框架结构
主体造价: 45-50万
开间: 16.2米
进深: 10.6米
占地面积: 165.79平方米
建筑面积: 412.61平方米
首层户型:

一 层:堂屋、客厅(中空)、卧室、厨房、餐厅、卫生间、储藏室、车库
二 层:客厅、卧室(附露台)、3卧室、卫生间
三 层:客厅、2卧室、娱乐室、卫生间、露台
编号: DC0285

层数: 三层
结构形式: 框架结构
主体造价: 40-45万
开间: 15.9米
进深: 10.5米
占地面积: 155.5平方米
建筑面积: 431.12平方米
首层户型:

一 层: 堂屋、客厅、卧室(附卫生间)、厨房、餐厅、储藏室、卫生间、车库
二 层: 客厅(附阳台)、卧室(附卫生间)、卧室(附阳台)、卧室(附衣帽间)、卧室、书房(附阳台)、卫生间
三 层: 客厅(附阳台)、卧室、娱乐室、卫生间、露台
编号: DC0276

层数: 三层
结构形式: 框架结构
主体造价: 25-30万
开间: 12米
进深: 9.3米
占地面积: 97.58平方米
建筑面积: 275.41平方米
首层户型:

一 层:堂屋、客厅、卧室、厨房、餐厅、储藏室、卫生间
二 层:起居室、娱乐室、卧室(附阳台)、卧室、卫生间、露台
三 层:3卧室、卫生间、露台
编号: DC0270

层数: 三层
结构形式: 框架结构
主体造价: 36-42万
开间: 14.4米
进深: 13.574米
占地面积: 153.35平方米
建筑面积: 439.63平方米
首层户型:

一 层:堂屋、客厅、娱乐室、卧室(附卫生间)、卧室、厨房(附阳台)、餐厅、卫生间
二 层:客厅、娱乐室、卧室(附卫生间)、卧室(附阳台)、2卧室、书房(附阳台)、卫生间
三 层:客厅、娱乐室(附阳台)、2卧室、卫生间、露台
编号: DC0252

层数: 三层
结构形式: 砖混结构
主体造价: 25-30万
开间: 13.4米
进深: 11.7米
占地面积: 132.18平方米
建筑面积: 361.36平方米
首层户型:

一 层:堂屋、客厅、2卧室、厨房(兼餐厅)、卫生间
二 层:起居室(附阳台)、卧室(附卫生间)、卧室(附阳台)、2卧室、卫生间
三 层:卧室(附卫生间)、卧室(附露台)、卧室、卫生间、露台
编号: DC0028

层数: 三层
结构形式: 砖混结构
主体造价: 22-26万
开间: 11.5米
进深: 10.5米
占地面积: 121.03平方米
建筑面积: 312.31平方米
首层户型:

一 层: 堂屋、客厅、老人房(附卫生间)、娱乐室、厨房、餐厅、农具间、卫生间
二 层: 客厅、2卧室(附阳台)、2卧室、2卫生间
三 层: 2卧室(附阳台)、卧室、卫生间、露台
堂屋其实算是一个对外开放性的区域,从以上小别墅的一层布局可以看出,有了堂屋,可以很好的保留房子其他区域的私密性,对于农村来说,清扫也比较简单。以上15款二、三层带堂屋的小别墅,你更喜欢哪款呢?
.jpg)
本文由别墅图纸超市编辑发布,如需了解更多,可登录网站主页http://www.bstzcs.com/,或者拨打我们的免费电话400-8080-889在线咨询。
>>>>推荐阅读:7套农村新中式四合院,一套比一套美,有庭有院过美好生活!
>>>>推荐阅读:10款简洁大方经济型三层自建别墅,第1款造价20万,第6款最漂亮!
>>>>推荐阅读:10款进深12米农村别墅,不可错过的户型,盖一栋值了!











