面宽12米农村建房,13款经典实用户型,辛苦打拼要建好房子!
面宽12米的农村别墅户型很多,也都很受欢迎,要说最受欢迎,还要数这13款,特意挑选出来给大家欣赏。房子是建给别人看的,自己住的,所以不仅要有一个出色的外观,还有有个合理而又生活方便的室内布局。百年基业要建好,建的好了一辈子一栋就足够。
三层欧式小别墅设计

建成实拍

编号: DC0276
结构形式: 框架结构
开间: 12米 进深: 9.3米
占地面积: 97.58平方米
建筑面积: 275.41平方米
主体造价: 25-30万
首层户型:

一 层:堂屋、客厅、卧室、厨房、餐厅、储藏室、卫生间
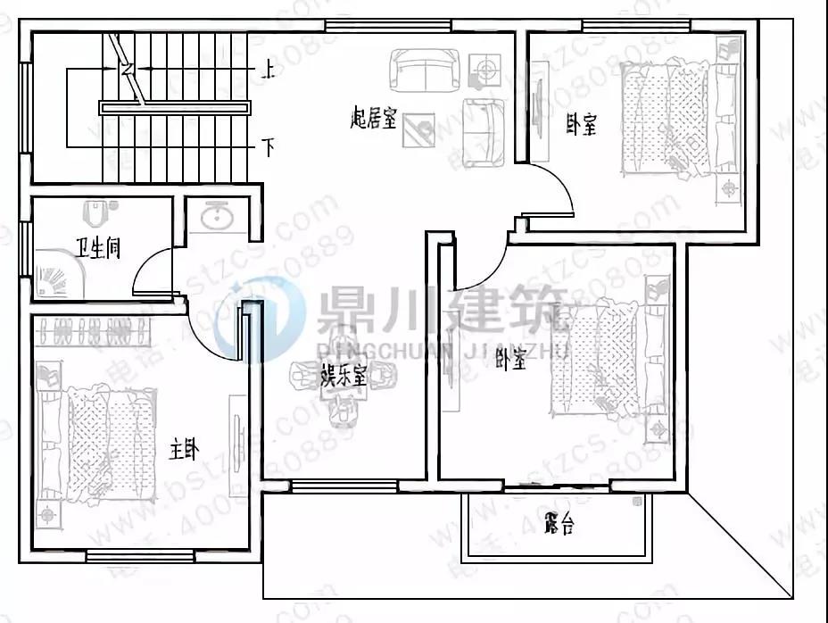
二 层:起居室、娱乐室、卧室(附阳台)、卧室、卫生间、露台
三 层:3卧室、卫生间、露台
农村二层自建房设计


编号: DC0239
结构形式: 砖混结构
开间: 12.04米 进深: 8.84米
占地面积: 103.4平方米
建筑面积: 206.79平方米
主体造价: 18-24万
首层户型:

一 层:客厅、卧室、厨房、餐厅、杂物间、卫生间
二 层:休息厅、小客厅(附阳台)、卧室(附阳台)、2卧室、卫生间
农村二层小别墅

编号: DC0355
结构形式: 砖混结构
开间: 12米 进深: 11.6米
占地面积: 135.56平方米
建筑面积: 300.98平方米
主体造价: 25-30万


一 层:门厅、客厅、卧室(附卫生间)、厨房、餐厅、卫生间
二 层:起居室、棋牌室(附露台)、卧室(附卫生间,阳台)、卧室(附阳台)、卧室、卫生间
大气三层中式风格别墅

编号: DC0367
结构形式: 砖混结构
开间: 12米 进深: 13.92米
占地面积: 160.85平方米
建筑面积: 467.26平方米
主体造价: 40-45万
首层户型:

二层户型:

三层户型:

一 层:门厅、客厅、卧室(附卫生间)、卧室、厨房、餐厅、卫生间
二 层:起居室、娱乐室(附阳台)、卧室(附卫生间)、3卧室、卫生间
三 层:起居室、卧室、书房、阳光房、健身房(附露台)、卫生间、杂物间、露台
欧式三层旋转楼梯别墅

编号: DC0380
结构形式: 框架结构
开间: 12.2米 进深: 12.8米
占地面积: 150.95平方米
建筑面积: 364.41平方米
主体造价: 40-50万



一 层:堂屋、客厅(中空)、卧室(附卫生间)、卧室(附衣帽间)、厨房、餐厅、卫生间
二 层:起居厅(附阳台)、卧室(附衣帽间,卫生间)、卧室、卫生间、露台
三 层:起居厅、卧室(附露台)、卧室、卫生间、露台
简单实用的二层小别墅

编号: DC0282
结构形式: 砖混结构
开间: 12米 进深: 8米
占地面积: 100.86平方米
建筑面积: 227.77平方米
主体造价: 16-20万
首层户型:

一 层:堂屋、客厅、卧室、厨房、餐厅、卫生间
二 层:客厅(附阳台)、卧室(附阳台)、卧室、儿童房、书房、卫生间
新农村二层自建别墅

编号: DC0022
结构形式: 砖混结构
开间: 12米 进深: 10.8米
占地面积: 130.23平方米
建筑面积: 260.46平方米
主体造价: 19-24万
首层户型:

一 层:客厅、卧室、厨房、餐厅、卫生间、车库
二 层:客厅(附阳台)、主卧(附卫生间)、3卧室、棋牌室、卫生间
农村二层带露台经济型小别墅

编号: DC0379
结构形式: 砖混结构
开间: 12米 进深: 9米
占地面积: 117.98平方米
建筑面积: 225.34平方米
主体造价: 18-26万


一 层:堂屋、客厅、卧室、厨房、餐厅、卫生间
二 层:起居厅、卧室(附阳台)、2卧室、卫生间、书房、露台
农村三层复式楼别墅

编号: DC0343
结构形式: 框架结构
开间: 12米 进深: 14.1米
占地面积: 146.27平方米
建筑面积: 444.19平方米
主体造价: 40-45万
首层户型:

二层户型:

三层户型:

一 层:门厅、客厅(中空)、卧室(附卫生间)、卧室、厨房、餐厅、观景平台、卫生间
二 层:起居室、卧室(附卫生间)、卧室(附书房,阳台)、卧室(附露台)、卫生间
三 层:健身厅、卧室(附卫生间)、卧室(附书房,露台)、卧室、卫生间、露台
三层新农居自建别墅


编号: DC0013
结构形式: 砖混结构
开间: 12米 进深: 14.7米
占地面积: 134.97平方米
建筑面积: 449.28平方米
主体造价: 27-34万
首层户型:

一 层:大堂、客厅、卧室(附卫生间)、娱乐房、厨房、餐厅、卫生间;
二 层:起居室(附露台)、卧室(附卫生间,露台)、卧室(附露台)、卧室、书房、卫生间
三 层:活动室(附露台)、2卧室、书房、卫生间、阳台
三层带露台小户型别墅

编号: DC0365
结构形式: 砖混结构
开间: 12.3米 进深: 9米
占地面积: 115.87平方米
建筑面积: 300.19平方米
主体造价: 24-28万
首层户型:

二层户型:

三层户型:

一 层:走廊、门厅、客厅、卧室、厨房、餐厅、卫生间
二 层:起居室、娱乐室、卧室(附露台)、2卧室、卫生间
三 层:健身房、卧室、卫生间、露台
农村二层带露台小别墅

编号: DC0349
结构形式: 砖混结构
开间: 12.3米 进深: 11.4米
占地面积: 136.61平方米
建筑面积: 324.52平方米
主体造价: 25-30万
首层户型:

二层户型:

一 层:客厅、卧室(附卫生间)、厨房、餐厅、卫生间
二 层:起居室、卧室(附卫生间,露台)、3卧室、卫生间
二层带露台农村别墅

编号: DC0287
结构形式: 框架结构
开间: 12.3米 进深: 11.1米
占地面积: 130平方米
建筑面积: 295.19平方米
主体造价: 25-30万
首层户型:

一 层:走廊、堂屋、客厅、2卧室、厨房、餐厅、卫生间、储藏室
二 层:客厅(附露台)、卧室(附书房,露台)、卧室(附露台)、卧室、卫生间
建房子从外观到布局,有人喜欢将房子建的气派,有人偏爱简单的户型;有人喜欢在宅基地上单独建一个小厨房,有人觉得建在一栋房子里面才更温暖;不管怎么说,我只想给你推荐这13款别墅户型,面宽均12米的农村别墅。
.jpg)
本文由别墅图纸超市编辑发布,如需了解更多,可登录网站主页http://www.bstzcs.com/,或者拨打我们的免费电话400-8080-889在线咨询。
>>>>推荐阅读:30余款最新设计:造型大方又体面,都是适合老百姓建的好房子!
>>>>推荐阅读:精选8款造价25万左右农村自建别墅,花最少的钱建最好的房子!
>>>>推荐阅读:10款简洁大方经济型三层自建别墅,第1款造价20万,第6款最漂亮!











