5套一层自建别墅,15万拿下,户型好到村里人抢着建!
说到自建别墅,大多数人似乎都喜欢二层建筑,觉得够大够霸气,但是小编却觉得其实一层别墅也很好,主体不装修的话15万就能建一套一层小别墅,把多余的钱用在修建院子上,一层的设计也可以多设计卧室,和两层差别不大,今天这5款一层别墅,15万左右就能建,户型可以参考。
户型一:编号DC0104

这款户型一层半形式,既扩大化了别墅一层鲜少的功能空间,又能省钱经济实用。开间16米,进深9.3米,占地面积145.38平方米,建筑面积267.99平方米,主体造价10-15万。
户型图:

一 层:堂屋(兼餐厅)、客厅、4卧室、厨房、卫生间
阁 楼:储藏间
图纸购买地址:http://www.bstzcs.com/goods-104.html
户型二:编号DC0122

这款一层农村别墅外观时尚现代,宽敞通透的落地窗,采光通风都很舒适。开间11.1米,进深9米,占地面积91.94平方米,建筑面积104.13平方米,主体造价10-13万。
户型图:

一 层:客厅、3卧室、厨房、餐厅、卫生间
图纸购买地址:http://www.bstzcs.com/goods-122.html
户型三:编号DC0158

别墅外观精致大气,颜色以白黄色和蓝色为主,白色作为点缀,还有明黄色的装饰物,窗户较大,有充足的阳光照射。开间15.5米,进深9米,占地面积133.2平方米,建筑面积178.14平方米,主体造价9-12万。
户型图:

一 层:客厅、卧室(附卫生间)、3卧室、厨房(附储藏室)、卫生间
图纸购买地址:http://www.bstzcs.com/goods-158.html
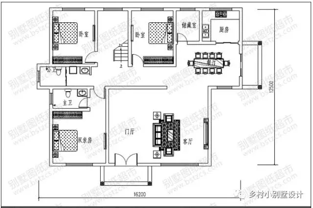
户型四:编号DC0220

本户型以黄白色和蓝色为主,黄色的墙体加上蓝色的屋顶,加上部分白色,还有一些明黄色的装饰物点缀在窗户上,柱子上,显得精神大气。开间16.2米,进深12.5米,占地面积183.25平方米,建筑面积236.72平方米,主体造价15-18万。
户型图:

一 层:客厅、卧室(附卫生间)、2卧室、厨房、餐厅、储藏室、卫生间
夹 层:储藏间
图纸购买地址:http://www.bstzcs.com/goods-220.html
户型五:编号DC0249

别墅外观时尚大气,红色的外墙配上白色的线条装饰,非常的美观。开间13.2米,进深12米,占地面积153.38平方米,建筑面积187.85平方米,主体造价14-18万。
户型图:

一 层:客厅、3卧室、厨房、餐厅、卫生间、车库
阁 楼:储藏间
图纸购买地址:http://www.bstzcs.com/goods-249.html
一层别墅也是非常好看又实用的,好好装修一下,弄个庭院,不比城里的别墅差。
.jpg)
本文由别墅图纸超市编辑发布,如需了解更多,可登录网站主页http://www.bstzcs.com/,或者拨打我们的免费电话400-8080-889在线咨询。
>>>>推荐阅读:10款农村别墅施工案例,每一款都让人惊艳
>>>>推荐阅读:120平的三层农村别墅,盖起了2款不一样的小别墅,你更喜欢哪款
>>>>推荐阅读:二层半别墅设计图,附施工案例,建好只要20万











